Description
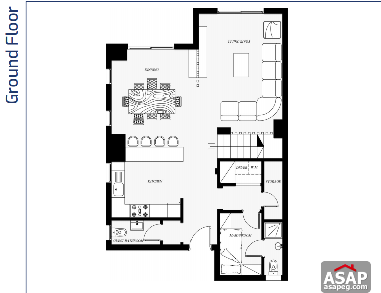
Town House for Rent in New Cairo , Mivida Emaar Land Area: 347sqm .. BUA: 276 sqm Semi Furnished with Kitchen and AC’s , Consists of Ground – First – Roof , 4 Bedrooms (1 Master) – 3 Bathrooms , Nanny’s Room with Toilet , Kitchen – Living Room – Storage - Terrace – Big Garden – roof – Swimming Pool for 40,000 EGP Town House for Rent in New Cairo.
Specifications
| ID | #2239 | Type | Town House |
|---|---|---|---|
| City | Cairo | Region | New Cairo |
| Size | 276m | Floor No. | GF + 1 + R |
| Views On | Pool | ||
Structure
| Bed Rooms | 4 | Bathrooms | 3 |
|---|---|---|---|
| Balcony | 1 | Roof | 1 |
| Garden | 1 |
Amenities
Air Condition




























